二手房
二手房
租房
小区
委托
大兴
大兴精品房
昌平
昌平精品房
百科
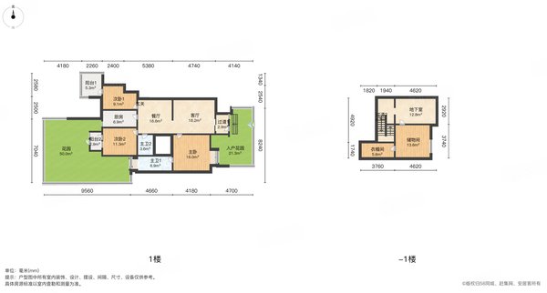
金地仰山(东区) 5室2厅2卫 113.73㎡
售价:
¥660
万
户型:
5室2厅
面积:
113.73平米
小区:
金地仰山(东区)
单价:
58032.18元/平米
朝向:
南北
楼层:低层/共9层
类别:
普通住宅
结构:
装修:
精装修
年代:
2012
编号:
8031128F6649D
标签:
南北通透
精装修
VR看房
小区位置
房价走势
关于兴商
联系我们
业主委托